Measuring Area
This guide provides a step-by-step process for accurately measuring area after setting the scale of a floorplan.
Watch the training video: “Measuring Area” for a full demonstration.
The video shows how to measure a footprint, calculate square footage, and clear measurements.
👉 You can either watch the video, or follow the detailed steps below.
Step-by-Step guide:
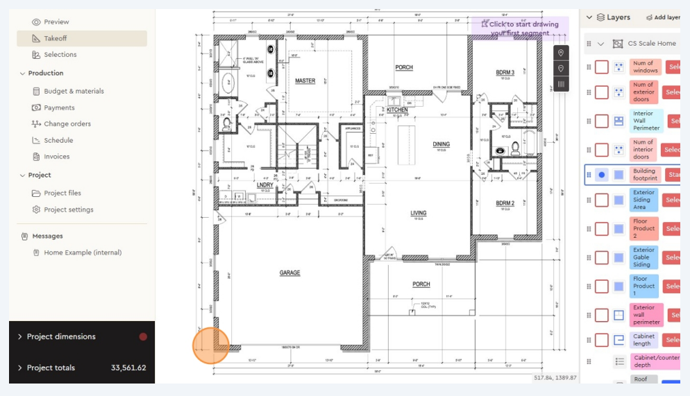
Select the correct layer
From your list of assemblies, choose the layer you want to measure on.

Example: Select Building Footprint if you want to calculate total square footage of the structure.
Click Start Drawing to activate the measuring tool.

Begin drawing the area, begin at one corner of the building and click each corner point around the footprint. Continue clicking until you’ve outlined the full area.

Once complete, right-click to finish the drawing.
The software will automatically calculate and display the square footage.

The outline will also remain visible on your plan for easy verification.
Clear or reset measurements (if needed)
-
Right-click on the measured layer (e.g., Building Footprint).
-
Select Clear contents from the menu.
-
This removes the drawn measurement but keeps the layer active, so you can redraw.
-
-
If you want to completely remove it, you can also choose Delete layer.

Return to the list view
Click List to see all your measurements summarized.

In this view, you can confirm quantities and link results into your estimate. e.g the building footprint we just measured in the takeoff tool. Don’t forget to save changes.

✅ Tips for accuracy:
-
Zoom in closely when clicking corners to ensure precise points.
-
If you make a mistake while tracing, use Undo or clear the measurement and redraw.
-
Keep layers organized by naming them clearly (e.g., Interior Walls, Footprint, Deck).
